Ákvarða þráðlaust net


Höfundur
Cascade
FanBoy
Póstar: 759
Skráði sig: Lau 04. Des 2004 00:02
Reputation: 43
Staða: Ótengdur

Ákvarða þráðlaust net

Pósturaf Cascade » Sun 23. Júl 2017 22:15

Sælir,

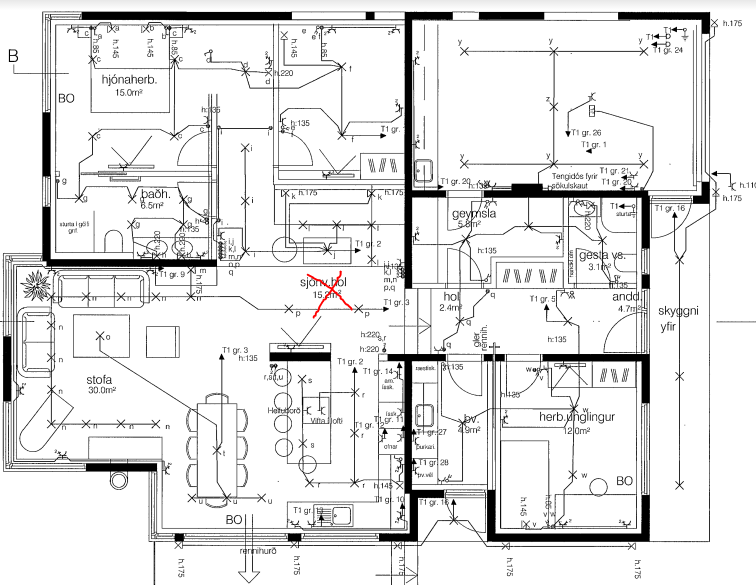
Ég er hérna með einbýli sem er um 175fm á einni hæð sem er verið að vinna í (Var fokhelt, komið töluvert lengra, verið að fara setja loftin bráðum, gifs)

Ég ætla að hafa access punkt í loftinu og ég er að meta það hvort það sé nóg að hafa 1stk í miðju hússins. Þá er sirka aldrei meira en 1 veggur frá þér í og access punkt, eins og ég merkti á myndinni með rauðu X-i

Ætti ég að gera ráð fyrir fleiri access punktum? Ég er hræddur um að það sé overkill og lík aað það verði smá vesen að tæki séu alltaf á einum og roaming verði ekki smooth

Það verða ethernet tengi á öllum veggjum þar sem það þarf, fyrir sjónvarp og tölvur, svo það verður allt tengt með snúru


Svo er það hvað á að kaupa. Þetta þarf helst að vera smá smart og ég fýla dáldið punktana frá Unifi þar sem þeir eru kringlóttir og mjög stílhreinir.

Ég var því að spá í að kaupa Unifi AC HD punkt, og svo Unifi USG og Cloud key sem router.

Kostnaður er ekki að skipta máli heldur bara top notch wifi

Teikning af húsi fylgir með í viðhengi, endilega segið mér hvað þið mynduð gera
Viðhengi
ap.PNG
ap.PNG (117.57 KiB) Skoðað 1814 sinnum



Skjámynd

russi
Geek
Póstar: 813
Skráði sig: Mán 02. Maí 2011 01:28
Reputation: 203
Staðsetning: Terran Empire
Staða: Ótengdur

Re: Ákvarða þráðlaust net

Pósturaf russi » Sun 23. Júl 2017 22:28

Held að það besta sem þú getur gert er að fá punt staðsetja hann þarna áður en loftið fer upp hjá þér og mæla.

Ég er nokkuð viss um að einn puntur dugi þér, en það verður ekki top-notch wifi um allt hús samt.

Sjálfur myndi ég setja punt í stofu/borðstofu, gangi við herbergi unglings og gang við hjónaherbergi. Allavega í hið minnsta drægi kapla þangað.

Ég er í 105fm íbúð, þarf að nota 2 punta. Reyndar næ ég ekki að setja punt alveg í miðjuna en er samt með einn punt nálægt henni.
Prófaði UniFi AC-Lite um daginn, bara til að athuga hvort hann stæði sig eitthað betur en það sem ég nota núna, hann gerði það ekki.

Svo er þetta líka spurning ef 2.4GHz nægja þér þá ertu líklega í fínum málum með þessa staðsetningu, ef þú ætlar þér í 5GHz (AC) þá þarftu klárlega fleirri punta.




Televisionary
FanBoy
Póstar: 772
Skráði sig: Þri 17. Feb 2009 15:26
Reputation: 160
Staða: Ótengdur

Re: Ákvarða þráðlaust net

Pósturaf Televisionary » Sun 23. Júl 2017 22:56

Ég er í 270 fm. og var lengi vel með þrjá punkta þ.e.a.s. einn á hverri hæð þetta voru 802.11n punktar með OpenWRT uppsettu. Ég náði föstum 40 Mbit á hvern punkt hérna innandyra aldrei meira og aldrei minna s.s. 5 MB/s. Í vetur uppfærði ég í Unifi 802.11ac og fór niður í 2 punkta hjá mér. Náði hraðanum upp en 5 Ghz finnast mér vera frekar leiðinleg hérna.

Þetta var/er allt sett upp sem eitt SSID. Það eina sem ég hef fundið fyrir er að sum tæki geta verið löt að skipta yfir á milli punkta. En ef ég fer með fartölvur á milli hæða þá drep ég snöggt á wifi og kveiki á aftur.

Ef þú ert tilbúin að sætta þig við 100 Mbit port þá myndi ég skoða Mikrotik. Ég er með punkta frá þeim sem hafa reynst mjög vel líka sem ég nota þegar ég túra og er ég að fá frábæra dreifingu og eru þeir töluvert minni heldur en Unifi punktarnir. Mikrotik á að geta sparkað "clientum" af ef þeir ná ekki X sterku merki og á að vera hægt að stilla það. Hef ekki skoðað það til fullnustu.

Unifi kontróller appið pirrar mig endalaust. En blessunarlega tekur þetta hratt af að setja upp og stilla og svo gleymir maður því hvað þetta er vont.




Höfundur
Cascade
FanBoy
Póstar: 759
Skráði sig: Lau 04. Des 2004 00:02
Reputation: 43
Staða: Ótengdur

Re: Ákvarða þráðlaust net

Pósturaf Cascade » Sun 23. Júl 2017 23:03

Sniðugt með að prófa þetta fyrst

Loftin verða kláruð á næstu 2 vikum og það er ekki kominn ljósleiðarabox þarna inn svo það er engin nettenging, svo ég sé ekki að ég nái því

Annars get ég ekki ímyndað mér annað en að 2.4GHz nægi í herbergjunum. Ég trúi ekki öðru nema það væru fínustu 40-50mbit/s sem myndu ná þangað

Ef ég myndi draga kapla þangað þá eiginlega yrði ég að láta enda í dósum og mér finnst ekkert of smart að hafa margar dósir í loftinu ef það þarf ekki

EDIT:
Þegar ég sagði top notch þá var ég að meina að það væri allavega 20-30mbits+ allstaðar

Bara þannig þú getir verið í símanum/laptop og skoðað youtube og allt þetta án vesens



Skjámynd

Nariur
Of mikill frítími
Póstar: 1860
Skráði sig: Sun 08. Jún 2008 01:18
Reputation: 219
Staða: Ótengdur

Re: Ákvarða þráðlaust net

Pósturaf Nariur » Mán 24. Júl 2017 00:07

Þá grunar mig sterklega að eitt stykki Unifi AP AC HD muni duga vel.


AMD Ryzen 9 5950X | Noctua NH-D15 | Nvidia Geforce RTX 3080Ti HOF | MSI MAG X570 Tomahawk | 32GB Corsair Vengeance RGB 3600MHz DDR4 | Corsair RM1000i | Samsung 950 Pro 512GB| Fractal Define R5 | LG CX 48" OLED


arons4
vélbúnaðarpervert
Póstar: 982
Skráði sig: Mið 27. Apr 2011 20:40
Reputation: 133
Staða: Ótengdur

Re: Ákvarða þráðlaust net

Pósturaf arons4 » Mán 24. Júl 2017 00:21

Myndi alltaf setja 1 fyrir ofan stofuna, 1 á ganginn við unglingaherbergið og 1 á ganginn við hjónherbergið. Ekkert leiðinlegra en þegar hraðinn á wifinu er orðinn verri en 4g.

Í það minnsta að legga rörin fyrir það áður en loftið er klætt. Annars eru rörum fyrir smáspennu aldrei ofgert þó þau séu tóm.



Skjámynd

russi
Geek
Póstar: 813
Skráði sig: Mán 02. Maí 2011 01:28
Reputation: 203
Staðsetning: Terran Empire
Staða: Ótengdur

Re: Ákvarða þráðlaust net

Pósturaf russi » Mán 24. Júl 2017 01:51

Cascade skrifaði:Sniðugt með að prófa þetta fyrst

Loftin verða kláruð á næstu 2 vikum og það er ekki kominn ljósleiðarabox þarna inn svo það er engin nettenging, svo ég sé ekki að ég nái því
s


Þú þarft ekki internet til að prófa hraðan, fullt til af öppum bæði á síma og í tölvur sem geta mælt hraðan á WiFi sambandi




Höfundur
Cascade
FanBoy
Póstar: 759
Skráði sig: Lau 04. Des 2004 00:02
Reputation: 43
Staða: Ótengdur

Re: Ákvarða þráðlaust net

Pósturaf Cascade » Mið 26. Júl 2017 00:01

russi skrifaði:
Cascade skrifaði:Sniðugt með að prófa þetta fyrst

Loftin verða kláruð á næstu 2 vikum og það er ekki kominn ljósleiðarabox þarna inn svo það er engin nettenging, svo ég sé ekki að ég nái því
s


Þú þarft ekki internet til að prófa hraðan, fullt til af öppum bæði á síma og í tölvur sem geta mælt hraðan á WiFi sambandi


Sæll,

Takk fyrir svörin þín. Ég ætla hafa allavega 3 AP eins og þú stakkst upp á.

Varðandi netið, þá er eins og er bara ljósleiðari frá mílu. Ég hef eingöngu reynslu af ljósleiðara gagnaveitunnar.

Ef ég skil þetta rétt (þá mesti skilningur frá svari frá þér annarsstaðar) þá er bara 1 port sem þú getur notað í boxinu frá Mílu. En til að fá Net, sjónvarp og heimasíma úr því eru notað VLÖN, eða VLAN3, 4 og 5. Með því að nota Unifi USG og Unifi managed switch ræð ég þá ekki auðveldega við að hafa netið, sjónvarpið og síma. Mig langar semsagt klárlega ekki að nota router frá símanum

Þá gæti ég í raun stillt á switchinum hvaða port er hvað.

Mér finnst eins og einhverjir hafa gefist upp á heimasíma þegar þeir hafa ljósleiðara hjá Mílu því þeir vilja ekki nota routerinn frá símanum, er það semsagt einfaldlega leyst með að tagga þá traffík sem VLAN5?



Skjámynd

russi
Geek
Póstar: 813
Skráði sig: Mán 02. Maí 2011 01:28
Reputation: 203
Staðsetning: Terran Empire
Staða: Ótengdur

Re: Ákvarða þráðlaust net

Pósturaf russi » Sun 30. Júl 2017 22:40

Það er rétt hjá þér. Þú reyndar þarft að hafa traffíkina untaggaða útúr hverju porti.

Hér er linkur frá Mílu sem útskýrir þetta




Höfundur
Cascade
FanBoy
Póstar: 759
Skráði sig: Lau 04. Des 2004 00:02
Reputation: 43
Staða: Ótengdur

Re: Ákvarða þráðlaust net

Pósturaf Cascade » Þri 01. Ágú 2017 22:51

Endaði á að taka frá eurodk.com
USG
Cloudkey
24port 250W switch
3x AC HD punktar

Þetta ætti að virka eitthvað